Главное достоинство участка — первая линия: всего 20 метров до воды, из окон вашего дома будут открываться потрясающие виды. Правильная форма участка позволит воплотить в жизнь любое архитектурное решение.
По периметру огорожен забором, который отвечает единой концепции благоустройства. Участок расположен в застроенной части посёлка, соседи построились, а в шаговой доступности — прибрежная инфраструктура: прогулочные набережные, пляжная зона, спортивные и детские площадки.
Земельный участок 16 соток с подрядом на строительство в коттеджном посёлке ''Павловы Озёра''.
Главное достоинство участка — первая линия: всего 20 метров до воды, из окон вашего дома будут открываться потрясающие виды. Правильная форма участка позволит воплотить в жизнь любое архитектурное решение.
По периметру огорожен забором, который отвечает единой концепции благоустройства. Участок расположен в застроенной части посёлка, соседи построились, а в шаговой доступности — прибрежная инфраструктура: прогулочные набережные, пляжная зона, спортивные и детские площадки.
Все коммуникации уже подведены: централизованное электро- и газоснабжение, водоснабжение и канализация, оптоволоконный интернет.
Дом по проекту ''Хамовники'': * Площадь: 446 кв. м * Количество спален: 5 * Количество этажей: 2 * Материал: керамические блоки Porotherm Thermo 380
Этот проект в стиле ''Минимализм'' — идеальное решение для семей, которые ценят лаконичные решения, премиальный уровень комфорта и хотят жить в гармонии с природой.
На первом этаже: * Просторная гостиная с панорамными окнами из премиальных материалов, отдельная столовая зона для семейных обедов. * Современная кухня * Гостевая спальня с собственным санузлом и гардеробной * Вместительный гараж для двух автомобилей
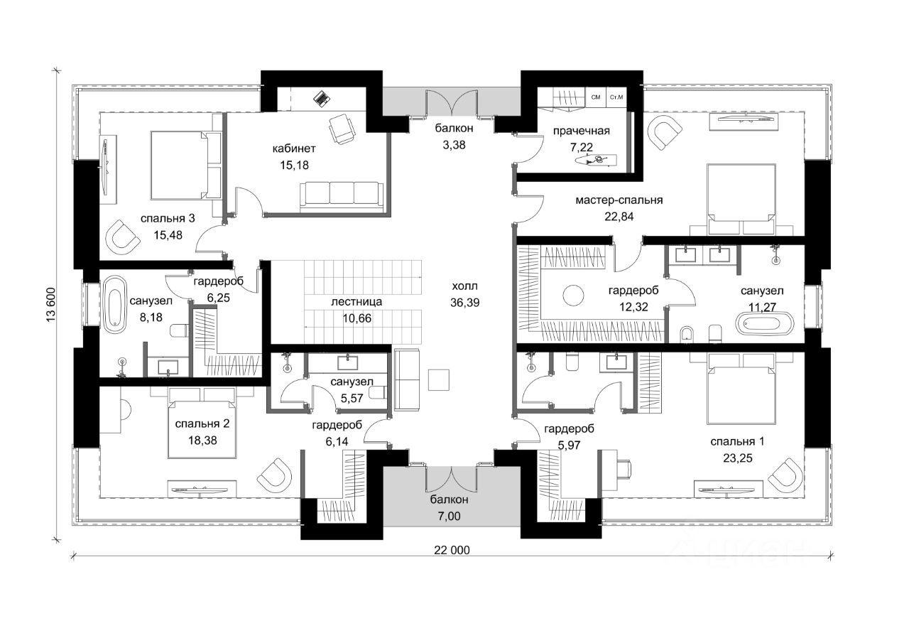
На втором этаже: * Роскошная мастер-спальня с собственной ванной комнатой и гардеробной * Три дополнительные спальни, которые также включают санузлы и гардеробные
В Павловых Озёрах предусмотрены все необходимые условия для проживания: * Строгая охрана. * Широкие дороги, мощеные брусчаткой. * Детские и спортивные площадки. * Озеро с пляжем. * Прогулочные зоны и спортивный кластер. * Высокоразвитая инфраструктура района. * Отличная транспортная доступность.