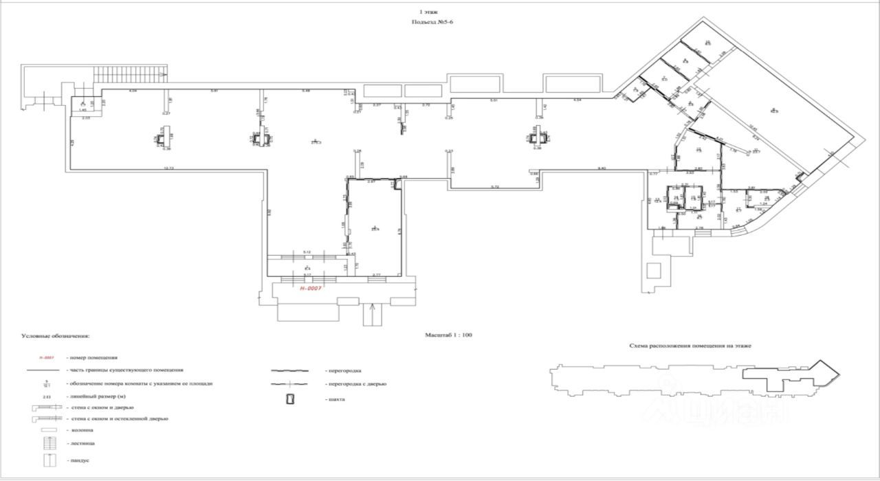
Продается помещение свободного назначения общей площадью 455,6 м² (432,7 м² 1 этаж и 22,9 подвал) на первом этаже 18-ти этажного монолитного жилого дома 2019 года постройки (схема прилагается). 1-ая линия домов. Каменная многоэтажная застройка с высокой плотностью населения.
В настоящий момент помещение сдано в аренду. Арендатор: продуктовая сеть ''Магнит''. Долгосрочный договор аренды. Готовый арендный бизнес.
Коммуникации: холодное и горячее водоснабжение, отопление, водоотведение, электричество 100 кВт. ВСЕ коммуникации центральные. ЖК обслуживается управляющей компанией. На фасаде имеется возможность установки вывесок.
Продается помещение свободного назначения общей площадью 455,6 м² (432,7 м² 1 этаж и 22,9 подвал) на первом этаже 18-ти этажного монолитного жилого дома 2019 года постройки (схема прилагается). 1-ая линия домов. Каменная многоэтажная застройка с высокой плотностью населения.
В настоящий момент помещение сдано в аренду. Арендатор: продуктовая сеть ''Магнит''. Долгосрочный договор аренды. Готовый арендный бизнес.
Коммуникации: холодное и горячее водоснабжение, отопление, водоотведение, электричество 100 кВт. ВСЕ коммуникации центральные. ЖК обслуживается управляющей компанией. На фасаде имеется возможность установки вывесок. Частично разбираемые перегородки помещений не являются несущими, и их разборка не влияет на несущую способность перекрытия над помещениями. Разборка существующих, а также устройство новых перегородок технически возможна по разработанному проекту.
Парковка перед фасадом. Место для размещения рекламы.