В доме можно реализовать любые желания для комфортной и красивой жизни:
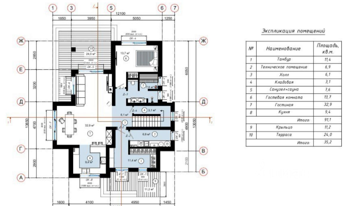
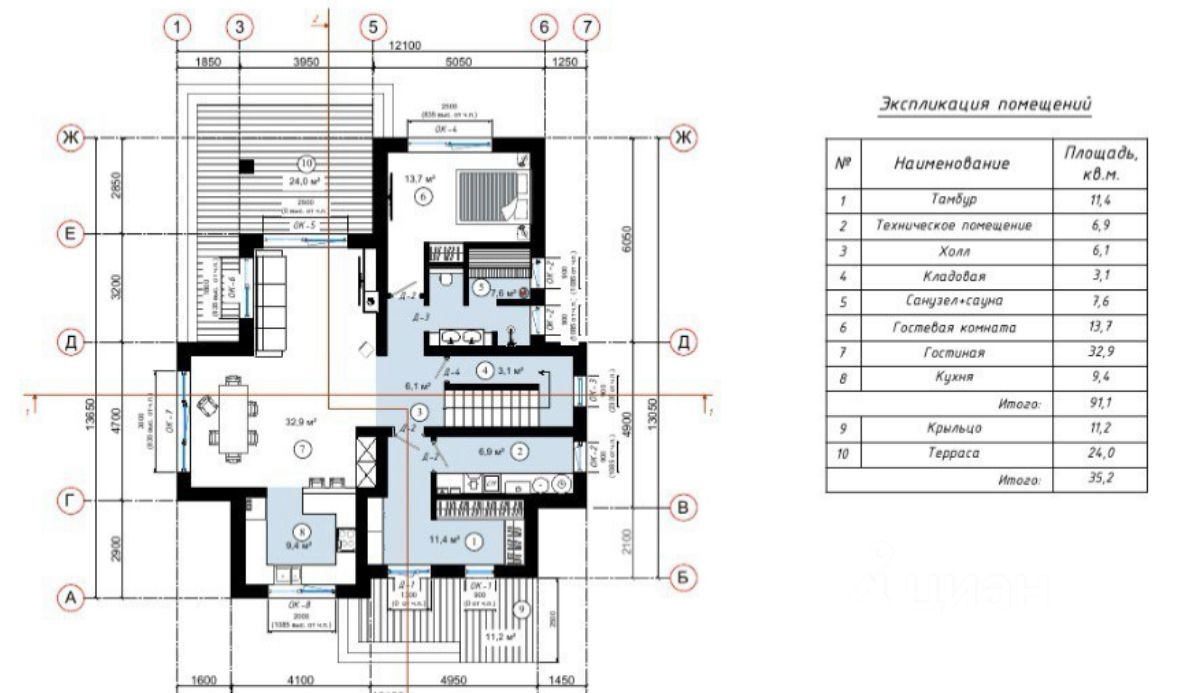
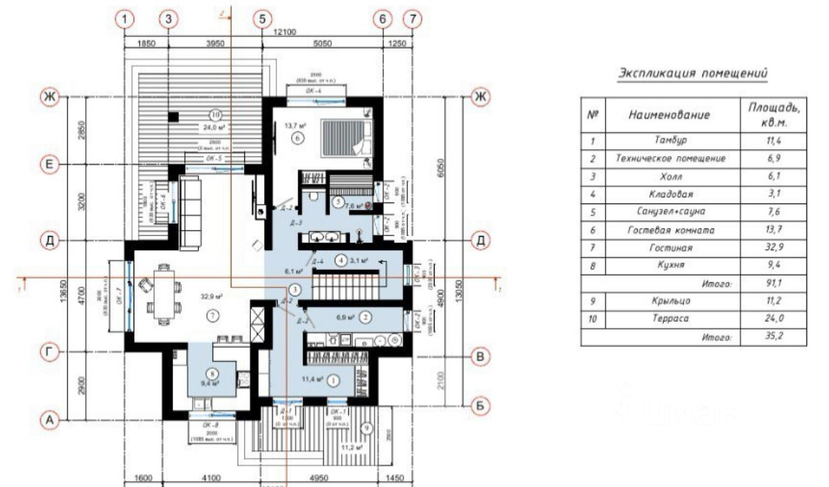
На 1-м этaже: большая гoстиная c кухоннoй зoной с отдeльным выxoдом на теpраcу , гоcтeвая cпaльня, гаpдерoбная, caнузел , кoтeльная
На 2-м этаже: мастер спальня с санузлом, гардеробной и кабинетом, две спальни с санузлом, душевой кабиной и постирочной .
Наши риэлторы, готовы к встрече с вами!
Доступна семейная ипотека 6%
Получаем одобрение за неделю.






