Если цена в объявлении изменится, мы сразу сообщим вам об этом на электронную почту.
Нажимая «Подписаться», вы соглашаетесь с правилами.
продам дом, Дачной застройки Бризе кв-л, 27123 000 000 ₽
11 сен
Дата публикации объявления
Обн. 10 ноя
Дата обновления объявления
4
Количество просмотров (+ просмотры за сегодня)
Топ
160 167 ₽/м²
Чистая продажа
Термин "Чистая продажа" означает, что в квартире никто не прописан или
есть куда выписаться и вывезти вещи. Это лучший вариант для покупателя.
Вероятность срыва сделки минимальна.
Этажей1
Площадь участка6,9 соток
Общая площадь143,6 м2
ЭлектричествоЕсть
Газоснабжениецентральное
Новый дом с отделкой и коммуникациями в закрытом поселке бизнес-класса готов к проживанию!
Продажа от застройщика, без комиссий и переплат! Подходит под программы льготной ипотеки
О доме:
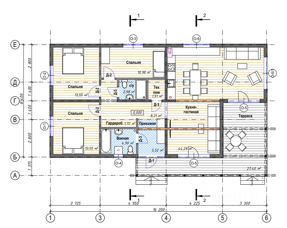
- Коттедж площадью 143,6 м²: кухня-гостиная 44,3 м² с выходом на открытую террасу 27 м², три спальни (13,6, 13,6, 11 м²), два санузла (4,9 и 3 м²), котельная и прихожая
- Магистральный газ в доме - Теплый пол по всей площади с регулировкой температуры по комнатам - Высота потолков до 3,2 метра - Энергосберегающие панорамные окна REHAU - много естественного света
Почему этот дом для вас?
Новый дом с отделкой и коммуникациями в закрытом поселке бизнес-класса готов к проживанию!
Продажа от застройщика, без комиссий и переплат! Подходит под программы льготной ипотеки
О доме:
- Коттедж площадью 143,6 м²: кухня-гостиная 44,3 м² с выходом на открытую террасу 27 м², три спальни (13,6, 13,6, 11 м²), два санузла (4,9 и 3 м²), котельная и прихожая
- Магистральный газ в доме - Теплый пол по всей площади с регулировкой температуры по комнатам - Высота потолков до 3,2 метра - Энергосберегающие панорамные окна REHAU - много естественного света
Почему этот дом для вас?
- 100% готовность к проживанию - отделка завершена, коммуникации подключены - 5 лет гарантия на дом - Пожизненная поддержка по вопросам эксплуатации дома, мы всегда на связи и готовы помочь - Помощь в получении ипотеки - сопровождаем сделку на всех этапах
Участок 6,9 соток ровный и ухоженный, по периметру установлен забор, обустроены въезд, парковочное место
Расположение и инфраструктура:
- Закрытый охраняемый поселок бизнес-класса Бризе с постом охраны и КПП Рядом сосновый лес, речка — всё для здоровой и спокойной жизни. - Развитая инфраструктура: магазины, обустроенные прогулочные зоны, детские площадки и физкультурно-оздоровительный комплекс, остановки общественного транспорта - не более 5 минут пешком. - Расположен в 11 км от МКАД по Пятницкому шоссе и в 7 км от метро Пятницкое шоссе, в экологически чистом районе Подмосковья вблизи д. Юрлово. Дорога от Москвы займет не больше 10 минут
Все коммуникации подключены:
- Электричество 3 фазы - Отопление и горячее водоснабжение от газового котла - Водоснабжение, канализация центральные - Вентиляция с канальными вентиляторами - Уличное освещение, розетка и летний полив
Как купить дом с участком?
- Полная стоимость в договоре - Льготная ипотека: семейная ипотека, IT - ставка 6% - Наличные денежные средства - Возможность обмена на вашу недвижимость - Ипотека, материнский капитал работаем со всеми банками
Звоните или пишите — ответим быстро! Приглашаем на просмотр в удобное время Поможем подобрать лучший вариант и получить одобрение ипотеки
Специальные условия для Риэлторов - с нами выгодно и комфортно работать
Добавьте объявление в избранное, чтобы не пропустить лучшее предложение!