193246 Баковка
Коттедж без внутренней отделки, 300 кв. м, на лесном участке 13 соток в поселке Баковка. Фасад дома отделан облицовочным кирпичом. Окна — пластиковые двухкамерные стеклопакеты. К дому примыкает гараж на 1 м/м. Территория участка огорожена забором, установлены откатные ворота.
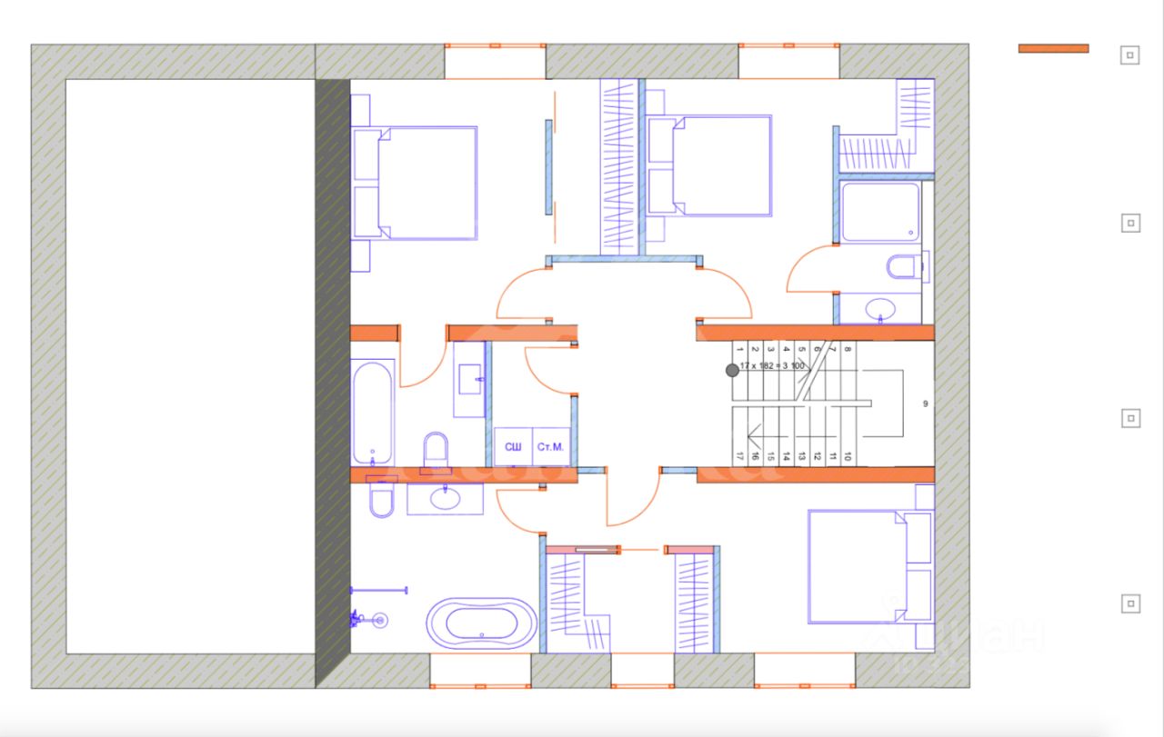
Планировка дома:
1 этаж: прихожая, гараж на 1 м/м, котельная, гостиная-столовая, спальня, с/у, открытая терраса.
2 этаж: холл, 3 спальни с с/у и гардеробными.
Звоните сейчас, чтобы узнать подробную информацию и записаться на показ!
Звоните. Будем рады ответить на возникшие вопросы.
















