Дом можно приобрести по семейной ипотеке.
Строительство дома по ДОГОВОРУ ПОДРЯДА:
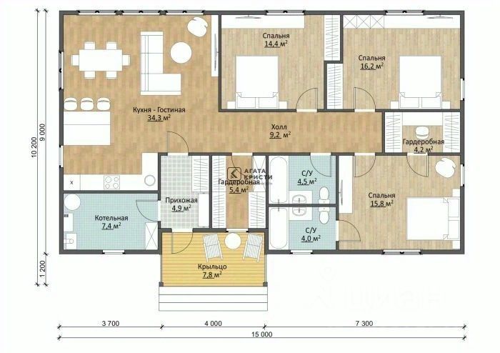
Одноэтажный коттедж с кухней-гостиной, 3-мя спальнями, 2-мя санузлами, 2-мя гардеробными и котельной с общей площадью 128.1 м2 сочетает в себе великолепие, простор и изысканность. Это прекрасное архитектурное решение для жизни большой семьи за городом.
Кухня-гостиная (34,3 м2) станет центром сбора гостей и семьи. В спальнях (14,4 м2, 15,8 м2 и 16,2 м2) можно установить мягкую мебель и шкафы для одежды. К одной из спален пристроена гардеробная площадью 4,2 м2.
В доме помимо санузлов (4 м2 и 4,5 м2) есть котельная площадью 7,4 м2. Там поместится все необходимое оборудование и стиральная машина.
Номер объекта: #1/545935/11635


