Если цена в объявлении изменится, мы сразу сообщим вам об этом на электронную почту.
Нажимая «Подписаться», вы соглашаетесь с правилами.
продам дом, Одинцово, 675 000 000 ₽
22 янв
Дата публикации объявления
Обн. 2 апр
Дата обновления объявления
250 000 ₽/м²
Чистая продажа
Термин "Чистая продажа" означает, что в квартире никто не прописан или
есть куда выписаться и вывезти вещи. Это лучший вариант для покупателя.
Вероятность срыва сделки минимальна.
Этажей2
Площадь участка11 соток
Общая площадь300 м2
Материал домакирпич - монолит
ЭлектричествоЕсть
Газоснабжениецентральное
ID: 570652 Продается новый двухэтажный дом в стиле шале без отделки общей площадью 300 кв.м. расположенный на участке 11 соток. Расположен в коттеджной застройке на Минском шоссе 10 км от МКАД, в 8 км от г Одинцово рядом с Мещерским лесопарком.
Дом построен из блоков, фасад выложен натуральным кирпичем. Толщина стен 55 см. Высота потолка в черновой 3,4 м. на первом этаже. Окна Veka двухкамерные. Установлено котельное оборудование Baxi, водоочистка. В гараже выполнен косметический ремонт.
ID: 570652 Продается новый двухэтажный дом в стиле шале без отделки общей площадью 300 кв.м. расположенный на участке 11 соток. Расположен в коттеджной застройке на Минском шоссе 10 км от МКАД, в 8 км от г Одинцово рядом с Мещерским лесопарком.
Дом построен из блоков, фасад выложен натуральным кирпичем. Толщина стен 55 см. Высота потолка в черновой 3,4 м. на первом этаже. Окна Veka двухкамерные. Установлено котельное оборудование Baxi, водоочистка. В гараже выполнен косметический ремонт.
Коммуникации подключены к дому: Магистральный газ Электричество 15 кВт Септик Скважина
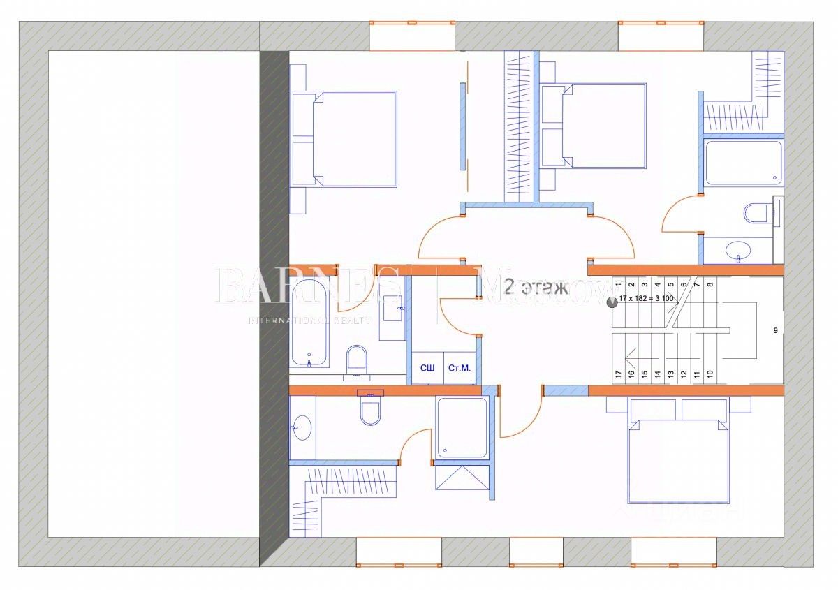
Планировка: 1 этаж: холл, гардеробная, ванная с сауной, кабинет/спальня, объединенная кухня со столовой и выходом на крытую террасу, мягкая зона, гараж на 1 м/м с антресолью 2 этаж: холл, три спальни со своими гардеробными и ванными комнатами, постирочная.
Возможна покупка примыкающего лесного участка до 50 соток.