Коттедж, Красный Поселок Показать на карте
Красный Поселок
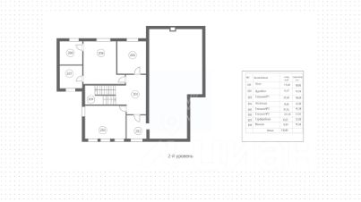
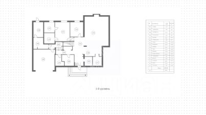
Новый Таунхаус, готов к проживанию ! Продажа от собственника В поселке все дома выполненные в едином стиле, с кирпичными фасадами и мансардными окнами. Таунхаус идеально подходит для семьи из 3-4 человек или для тех, кто только планирует семейную жизнь. Рядом с каждым домом предусмотрены два парковочных места. В самом поселке и вокруг него развита инфраструктура.Магазины и школа в шаговой доступности, а также, прямо на территории поселка достраивается средняя школа. Детские сады, спортивные секции, английские школы, большое количество детских площадок и прогулочных зон, салон красоты, ателье, аптека, пиццерия, рестораны и кафе. Обслуживание всего 6.000р в месяц.Поселок огорожен, охраняемая территория с регулярным патрулированием, Благоустроенная территория, поселок заселен и полностью облагорожен. Центральная канализация, отопление, магистральный газ, телефон, интернет.Таунхаус полностью подготовлен для проживания. Все три этажа жилые, с дизайнерским ремонтом и планировкой. Вся бытовая техника присутствует, кондиционеры установлены, отопление запущено, дом теплый. Потолки 2.7 метра.Планировка: 1 этаж - Прихожая \ Санузел \ Кухня \ Гостиная зона.2 этаж - Мастер-спальня \ санузел с ванной \ гардеробная.3 этаж - Просторная детская спальня \ Рабочая зона \ Гардеробная \ Санузел.Продажа непосредственно от собственника!
115 м2
3 этажа
Кирпич
- Показать контакты
- Добавить в избранное
115 м2
3 этажа
Кирпич
28 500 000
247 826 /м2
