Дом, Дубрава садовое товарищество (Химки городской округ), 6 Показать на карте
Дубрава садовое товарищество (Химки городской округ)
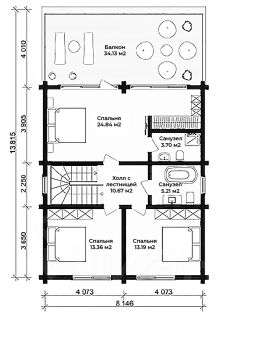
Код объекта: 1086056.АГЕНТСТВО ''ВЛАДИС '' ПРЕДЛАГАЕТ В ПРОДАЖУ ПРОСТОРНЫЙ ДОМ для дружной семьи с хорошей энергетикой ! Всего 9км от МКАД с отличной транспортной доступностью.Чистейшим воздухом и водой! Оазис умиротворения и комфорта! В пешей доступности строиться большая школа и детские сады. 2 мин до магазина Вкус вилл. Все, что необходимо для жизни в шаговой доступности! Дом полностью кирпичный! Все ремонтные работы выполнены из качественных материалов! Лестницы дубовые(изготавливались по технологии ''без скрипа'')На участке растут взрослые деревья : липа , сосны, ели, туя, рябина, сирень. Кустарники можжевельника, крыжовника, смородины, малины. Теплый гараж на 2 машины + Навес на 4 авто.Большая беседка с барбекю, скважина с артезианской водой (70 метров), септик. В доме видео наблюдение, газ, электричество 21 Квт. 7 изолированных комнат Первый этаж: Прихожая , кухня-столовая , гостинная, две комнаты, зимний сад, совмещенный санузел , везде теплый пол. Второй этаж: 4 комнаты, два совмещенных санузла, лоджия под стеклом 20 метров. Хочется сделать акцент для будущей хозяйки дома! В доме предусмотрена , мастер- спaльня сo cвoим сaн. узлoм, гардеробной .В доме частично остается мебель итальянского производства из натурального дерева ( кухонный гарнитур, спальный гарнитур ....) что предает шарм уютному пространству.В доме все продуманно до мелочей хозяйкой с хорошим вкусом и манерами.При покупке дома приобретаете огромные БОНУСЫ в виде : *достойных соседей, *дополнительной площадью 150 метров в сухом чистом подвале *100 метров третьего этажа под звездным небом!*готовая вытяжка для установки камина*второй вход в дом Остановка автобуса 50 метров до ст. Химки, метро Ховрино и Планерная. Рядом ЖК Берег, магазины, пункты выдачи, школа, сад, лес и канал имени Москвы. Подъезд к дому по Ленинградскому или Дмитровскому шоссе. Асфальт до ворот дома.Звоните! Отвечу на все вопросы! Организую оперативный показ. Могу с полной уверенностью утверждать, что фото не передают ту атмосферу уюта и тепла, которые останутся у вас от просмотра и невероятного семейного счастья от покупки !
448 м2
2 этажа
Кирпич
- Показать контакты
- Добавить в избранное
448 м2
2 этажа
Кирпич
34 550 000
77 121 /м2
