Таунхаус, Дубрава садовое товарищество (Химки городской округ), 11 Показать на карте
Дубрава садовое товарищество (Химки городской округ)
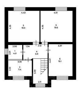
Продаётся уютный таунхаус площадью 175 м² на участке 3,65 сотки в одном из самых живописных и престижных районов Подмосковья — Новогорске (г. Химки), всего в 5 км от МКАД.Новогорск по праву называют подмосковной Швейцарией — здесь чистый воздух, густой лес, извилистая река Сходня и холмистый рельеф. Это место, где можно по-настоящему отдохнуть душой, оставаясь рядом с Москвой.Планировка продумана для комфортной семейной жизни: просторная гостиная, кухня-столовая, несколько спален, гардеробные и санузлы на каждом этаже.Есть собственная сауна — уютное место отдыха после активного дня.Интерьер выполнен в светлых, натуральных тонах, а большие окна наполняют дом светом и ощущением простора.Участок аккуратный и ухоженный — 3,65 сотки, с оборудованной зоной барбекю и крытой парковкой. Здесь приятно проводить вечера с семьёй и друзьями, наслаждаясь тишиной и зеленью.Район сочетает природу, комфорт и развитую инфраструктуру.Рядом — Академическая гимназия Новогорск, входящая в ТОП-35 школ Москвы и области, детские сады, магазины, кафе и фитнес-клубы класса люкс с бассейнами и SPA.Новогорск — спортивный центр Подмосковья: здесь находятся учебно-тренировочные базы футбольного и хоккейного клубов Динамо-Москва, центр художественной гимнастики Ирины Винер-Усмановой, арена Сталкер, теннисная школа, центр фехтования Ильгара Мамедова, горнолыжный склон Куркино и гольф-клуб Москва.Любители природы оценят близость парка Долина реки Сходни и парка Дубрава — зелёных оазисов с тропами, беседками и зонами отдыха.Транспортная доступность отличная:удобный выезд на Ленинградское, Куркинское и трассу М-11, а также близость станции МЦД-3 Молжаниново и метро Планерная — до них можно добраться за 15-20 минут.Свободная продажа, собственность более 5 лет.Оперативный показ!Этот дом — для тех, кто ищет гармонию между природой, комфортом и активной жизнью.Здесь чувствуешь себя дома с первой минуты — среди света, зелени и спокойствия. Звоните, чтобы договориться о просмотре.Приезжайте — и убедитесь, что именно здесь начинается ваш новый дом. Диаль Недвижимость — подбираем дома и квартиры, в которых хочется жить.
175 м2
3 этажа
Кирпич
- Показать контакты
- Добавить в избранное
175 м2
3 этажа
Кирпич
34 990 000
199 943 /м2
